Die Fakten
- Ref.-No.: TF03717
- Immobilien Typ: Baugrundstück
- Möbliert: Nein
- Zustand: Neuwertig
- Pool: Nein
- Ort: Icod de los Vinos
- Höhe über NN: 290 m
- Grundstück: 1.100 m²
- Wohnfläche: 0 m²
- Wohnzimmer: 0
- Schlafzimmer: 0
- Badezimmer: 0
- Kaufpreis: 145.000 €
Objektbeschreibung
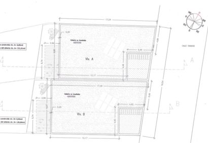
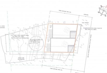
Bauparzelle im Stadtgebiet von Icod de los Vinos mit bestehendem und genehmigten Bauprojekt zum Bau von zwei Doppelhaushälften. Das Grundstück liegt sehr ruhig am Ende einer Sackgasse mit guter Zufahrt und hat einen unverbaubaren Blick auf den Atlantik und die Küste. Das Grundstück kann natürlich auch mit einem freistehenden Einfamilienhaus bebaut werden.









